Eau et assainissement

S.I.R.G.E.A.
SYNDICAT INTERCOMMUNAL DE LA REGION DE GUENANGE POUR L'EAU ET L'ASSAINISSEMENT
Créé en 1992, le syndicat intercommunal de la région de Guénange pour l'eau et l'assainissement exerce pour le compte des communes de Guénange, Bertrange, Bousse et Rurange-lès-Thionville les compétences « eau potable » et « assainissement des eaux usées », et a pour objet de gérer, exploiter et financer l'ensemble de ces 2 services.
Composition
Les quatre communes membres du Syndicat sont les suivantes :
- BERTRANGE
- BOUSSE
- GUENANGE
- RURANGE LES THIONVILLE
Compétences
Le fonctionnement et l'exploitation du service, l'étude, la programmation et la réalisation de tous travaux d'entretien, de réparations, d'amélioration et d'agrandissement des réseaux, des installations et ouvrages du service eau et assainissement des eaux usées.
Il assure également l'exploitation et le fonctionnement des réseaux et ouvrages pluviaux des communes membres.
Le comité syndical est composé de
- M. Pierre KOWALCZYK, Président (BOUSSE)
- M. Patrick FRASCHINI, Vice-Président (GUENANGE)
- M. Claude SIEBENALER, Vice-Président (BERTRANGE)
- M. Pierre ROSAIRE, Vice-Président (RURANGE LES THIONVILLE)
DELEGUES DE GUENANGE
- M. Vincent EHRHARDT
- M. Laurent LEBACQ
- M. Daniel SIEGWARTH
- M. Dominique ROGER
- M. Pierre TACCONI
- M. Yann WACHOWIAK
DELEGUES DE BERTRANGE
- M. Michel GUIBAUDO
- M. Jean-Luc PERRIN
DELEGUES DE BOUSSE
- M. Marcel BECKER
- M. Bernard WARTER
DELEGUE DE RURANGE LES THIONVILLE
- M. Jean-Luc BALTZLI
Le SIRGEA assure la gestion de la station d'épuration de Bertrange
Retrouvez une vue aérienne
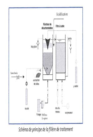
Unité de décarbonatation
La décarbonatation, c'est une qualité de l'eau améliorée pour les habitants !
La ressource en eau du SIRGEA provient en effet de la nappe alluviale de la Moselle qui est captée par 12 puits. Elle est naturellement chargée en calcaire avec un taux de dureté entre 35°F et 40°F.Avec la nouvelle unité de décarbonatation, la dureté de l'eau est de 15 à 20°F. La technologie employée est la décarbonatation catalytique à la soude avec un réacteur et un filtre. Avec un débit de 80 m3 par heure, l'unité traite la totalité des captages d'eau du syndicat.
Pour compléter sa fourniture le SIRGEA achète à la Ville de METZ et au Syndicat du FENSCH de l'eau avec un titre hydrotimétrique compris entre 25°F et 27°F.
Des bénéfices pour les consommateurs
- un gain sur le pouvoir d'achat de 200 €/an en moyenne par an,
- une démarche d'équité sociale : le confort et les économies pour tous, indépendamment des revenus, et proportionnellement à la consommation d'eau,
- une réduction de l'impact environnemental du Syndicat lié à la présence de calcaire, de plus de 80% (réduction des produits chimiques, de l'énergie, des déchets, des transports, des ressources, augmentation de la durabilité des équipements) et diminution de la consommation d'eau en bouteille par 2,5.
Rapports du délégataire
| Sirgea aep rpqs 2024 | 08 octobre 2025 | Télécharger |
| Sirgea ass rpqs 2024 | 08 octobre 2025 | Télécharger |
| Sirgea aep rpqs 2023 | 07 août 2025 | Télécharger |
| Sirgea ass rpqs 2023 | 07 août 2025 | Télécharger |


